Да бъде обособено пространство за паркиране пред бургаския манастир „Рождество Богородично“ и средства за поддръжка на оградата на манастира. За това настояват общинските съветници адв. Христина Хаджиатанасова и арх. Дилян Георгиев, чиято докладна записка ще бъде гласувана утре на августовската сесия на местния парламент в Бургас.
Ако предложението бъде одобрено, ще бъде осигурен финансов ресурс в размер до 20 000 лева, които ще бъдат отделени за сметка на общинската администрация.
В докладната записка се напомня, че манастир е единственият на територията на община Бургас. Той е основан през XII век, а заради лековитите води там е имало и отделение за лечение на болни хора. Първите документирани сведения за съществуването на манастира са от 1892 г. В общински протоколи той е споменат под името „Аязмото“. От Освобождението до ден днешен манастирът е тачен и посещаван от бургазлии. На територията на манастира има две църкви, като едната „Свето Рождество Богородично“ е новопостроена. Има и жилищна сграда на три етажа, магерница и стопански сгради. Най- интересни са параклисите, които момента наброяват 40. Всяко параклисче носи името на различен светия, като някои от тях са построени върху кладенчета с лековита вода.
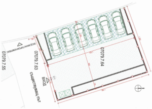
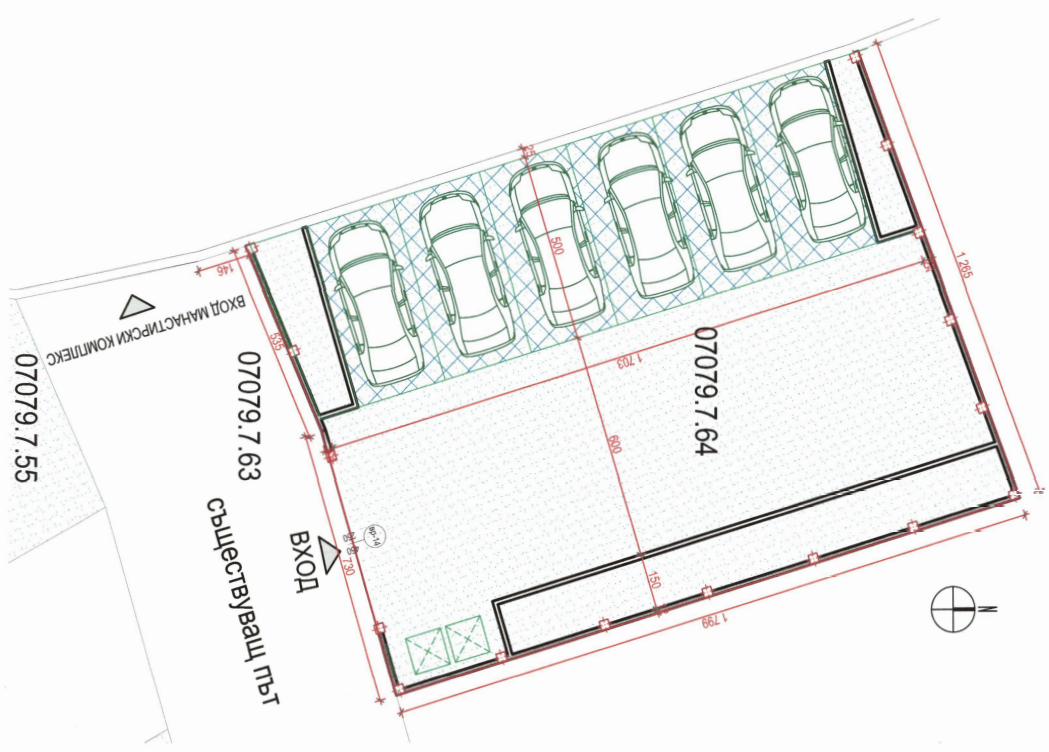
Хаджиатанасова и Георгиев изтъкват, че въпреки интереса към манастира, се забелязват проблеми с нелегални „дрифтове“ разрушаващи неговата стена, нерегламентирано изхвърляне на отпадъци, както и липса на паркоместа за посетители.
През месец юни двамата входирана писмо до администрацията относно възможностите за възстановяване оградата на манастира, изграждането на паркинг и поддръжка на зелените площи
Те предлагат без промяна на подробния устройствен план да се обособи помещение за инвентар за поддръжка на зелените площи, а районът около него да се благоустрои под формата на паркинг за посетители на манастира без да се променя статута на земята.
„С така направените предложения ще може да бъде удовлетворено желанието на гражданите на Община Бургас и нуждите на манастира за обособяване на паркинг без необходимост за поправка в ОУП на град Бургас“.
Докладната записка бе обсъдена от членовете на и се очаква утре да бъде гласувана по време на заседанието в последния работен ден на месец август.






[…] Ще бъдат ли отпуснати средства за манастир „Рождество… […]